スカイコート博多駅前Ⅰ/家具家電付き賃貸物件

※掲載されている画像(設置されている家具家電等を含む)と現況が異なる場合は現況を優先いたします。

詳細情報

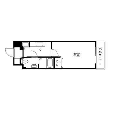
  • 間取り図
    • 所在階
    • 賃料/共益費
    • 敷金/礼金
    • 間取り
      専有面積
    • 入居時期
エクセレント
  • 9階
  • 66,000円11,000円
  • 0ヶ月 / 1ヶ月
  • 1K
    23.89m²9階
  • 2026年04月01日
    空き予定
  • エクセレント
  • オートロック
  • バス・トイレ別
  • 洗面所独立
  • エレベーター
  • ペット相談可
種別マンション 建物構造/階数鉄筋コンクリート造 / 12階建 築年月日2008年3月
駐車場なし 契約期間/契約形態2年 / 定期借家 再契約料新賃料1ヶ月
火災保険あり 月額800円 情報更新日2026/02/02 取引態様貸主

※入居の際は、貸主指定の家賃保証と家財・火災保険に加入していただきます。
※1年未満のご利用の場合は、マンスリーマンション リブマックスをご検討ください。

設備・備品を

電化製品
エアコン
バス・トイレ類
洗面所独立
備品・消耗品
洗濯ロープ
物件設備
オートロック、エレベーター
部屋設備
バス・トイレ別、洗濯機置場(室内)

この物件で募集している部屋

  • 間取り図
    • 所在階
    • 賃料/共益費
      敷金/礼金
    • 間取り
      専有面積
    • 入居時期
エクセレント
  • 9階
  • 66,000円11,000円
    0ヶ月 / 1ヶ月
  • 1K
    23.89m²9階
  • 2026年04月01日
    空き予定
  • エクセレント
  • オートロック
  • バス・トイレ別
  • 洗面所独立
  • エレベーター
  • ペット相談可
エクセレント
  • 6階
  • 64,500円11,000円
    0ヶ月 / 1ヶ月
  • 1K
    23.6m²6階
  • 2026年03月01日
    空き予定
  • エクセレント
  • オートロック
  • バス・トイレ別
  • 洗面所独立
  • エレベーター
  • ペット相談可

「空室状況を知りたい」「内見してみたい」「もっと詳しく知りたい」と思ったら

株式会社リブマックスプロパティマネジメント西日本
〒650-0001
兵庫県神戸市中央区加納町2丁目9-24 プレジール三宮2 2F
  • TEL 078-272-1503
  • FAX078-272-1504

周辺マップ

WEBからお問い合わせ