ZOOM飯田橋/家具家電付き賃貸物件

※掲載されている画像(設置されている家具家電等を含む)と現況が異なる場合は現況を優先いたします。

詳細情報

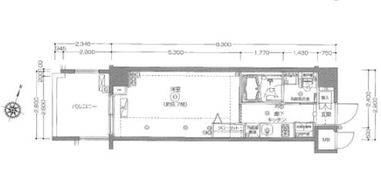
  • 間取り図
    • 所在階
    • 賃料/共益費
    • 敷金/礼金
    • 間取り
      専有面積
    • 入居時期
エクセレント
  • 2階
  • 140,000円11,000円
  • 0ヶ月 / 1ヶ月
  • 1K
    26.97m²2階
  • 2026年04月14日
    空き予定
  • エクセレント
  • オートロック
種別マンション 建物構造/階数鉄筋コンクリート造 / 6階建 築年月日2013年7月
駐車場なし 契約期間/契約形態2年 / 定期借家 再契約料新賃料の1ヵ月
火災保険あり 月額800円 情報更新日2026/04/02 取引態様貸主

※入居の際は、貸主指定の家賃保証と家財・火災保険に加入していただきます。
※1年未満のご利用の場合は、マンスリーマンション リブマックスをご検討ください。

設備・備品を

物件設備
オートロック
部屋設備
インターネット対応(無料)

この物件で募集している部屋

  • 間取り図
    • 所在階
    • 賃料/共益費
      敷金/礼金
    • 間取り
      専有面積
    • 入居時期
エクセレント
  • 2階
  • 140,000円11,000円
    0ヶ月 / 1ヶ月
  • 1K
    26.97m²2階
  • 2026年04月14日
    空き予定
  • エクセレント
  • オートロック
エクセレント
  • 3階
  • 140,000円11,000円
    0ヶ月 / 1ヶ月
  • 1K
    26.32m²3階
  • 2026年05月31日
    空き予定
  • エクセレント
  • オートロック

「空室状況を知りたい」「内見してみたい」「もっと詳しく知りたい」と思ったら

株式会社リブマックスプロパティマネジメント東日本
〒107-0052
東京都港区赤坂2丁目5-1 S-GATE赤坂山王 9F
  • TEL 03-3505-3422
  • FAX03-3505-3433

周辺マップ

WEBからお問い合わせ